1027 3rd Ave Iowa City IA 52240
1027 3rd Ave Iowa City IA 52240
1027 3rd Ave, Iowa City, IA, 52240Basics
- Date added: Added 4 months ago
- Type: MULTI-FAMILY
- Status: Sold
- DOM: 177
- Subdivision: East Iowa City
- Year built: 1910
- Water/Sewer: City Sewer,City Water
- Heating/Cooling: Window/Wall Units,Radiant
- Units Total: 2
- Address: 1027 3rd Ave, Iowa City, IA, 52240
- MLS ID: 202403002
Description
-
Description:
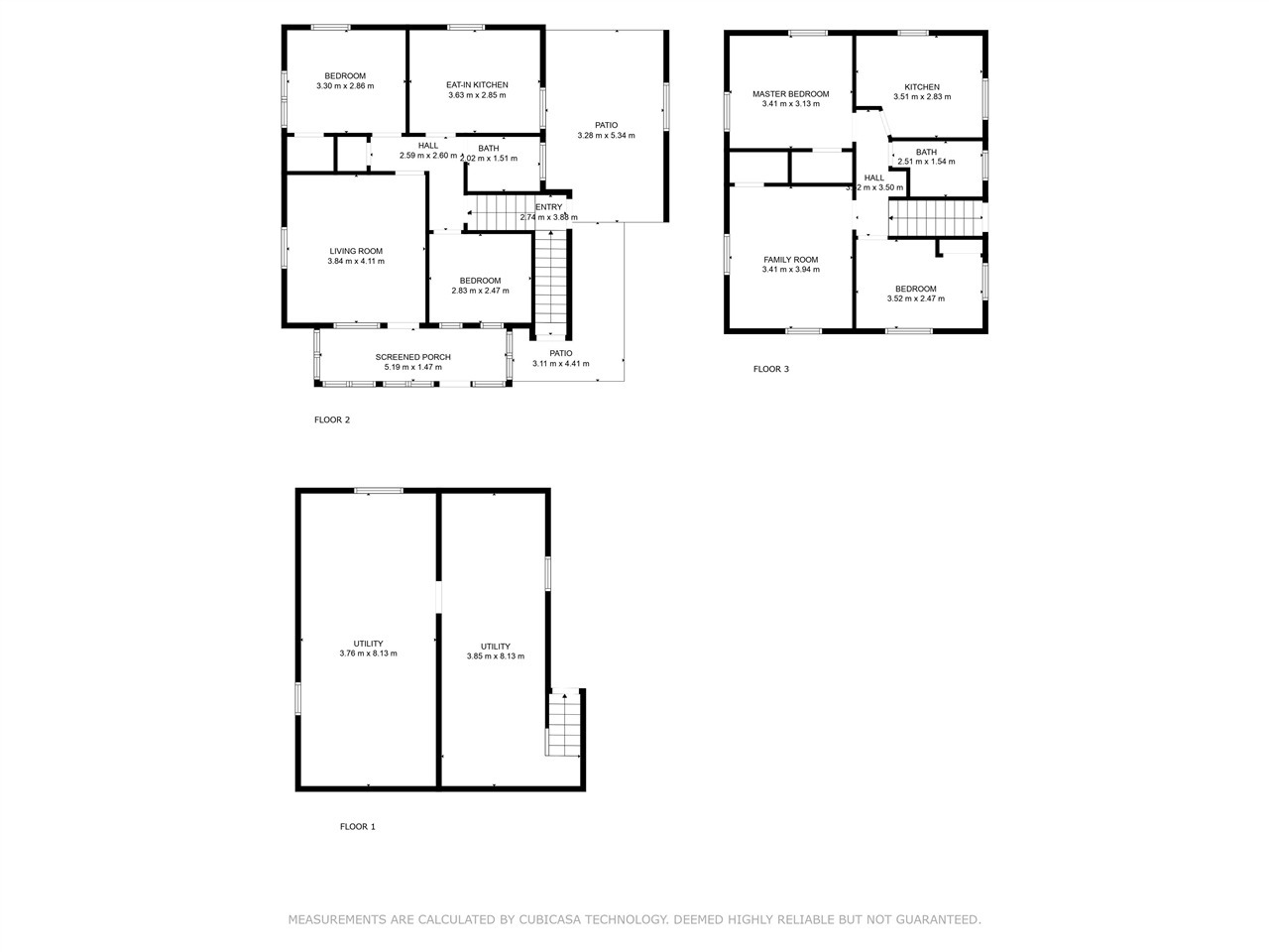
Great up/down duplex in the Longfellow District with fantastic long term tenants! Both units offer 2 bedrooms, 1 full bath, kitchen with eating area, living room, & built-ins. The main floor unit also has access to the front screen porch. The lowest level houses two laundry units, a walk-in shower + utilities & storage for tenants. The detached 3 stall garage offers extra income opportunity. Unit 1 tenant uses one of the garage stalls in exchange for snow removal, while 2 of the garage stalls are not occupied and could be rented out separately for additional income. 24 hour notice required for showings. Rented until 2025. Active rental permit. One seller is related to listing agent. Unit 1 rent is $910/mo and Unit 2 rent is $950/mo.
Show all description
Location
- Directions: 1st Ave, West on H St, house is on corner of H St & 3rd Ave.
- County: Johnson
Amenities & Features
- Features:


